Neubau Energieversorgungszentrale Bosch

Reutlingen

Projekt-Details

Architektur:
Stroetmann Hinz Planungsgesellschaft mbH


Bauherr:
Robert Bosch GmbH


Planungs- und Bauzeit:
2022 bis 2024


Leistungsphasen (HOAI):
Tragwerksplanung LPH 1-5


Baukosten / Honorarzone:
ca. 25. Mio. € / III

Projektbeschreibung

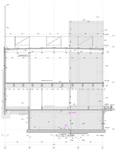
Am Standort Reutlingen wird für diverse neue Fertigungslinien eine neue Energieversorgungszentrale benötigt. Strom, Wärme und Kälte wird durch zwei neue bergmännisch erstellte Stollen mit einem Durchmesser von 3m auf dem Werksgelände verteilt. Die Stollen beginnen in einem ca. 16m tiefen Schacht mit einem Innendurchmesser von 11,5m. 

Die Zentrale besteht aus einem Schachtbauwerk, einem UG, das hauptsächlich als Tank für die Sprinkleranlage verwendet wird, einem EG für die Elektroversorgung, einem OG für die Wärmeversorgung, sowie einem Dachgeschoss für die Kühlgeräte. UG, EG und OG werden als weitgespannte Stahlbetonkonstruktion erstellt, die Kältegeräte stehen auf einer Stahlkonstruktion aus Fachwerkbindern. 

Der runde Schacht wurde als Startgrube mit einer nur 16cm starken Spritzbetonschale erstellt. Nach Herstellung bzw. Vorpressen der Tunnelröhren erhält der Schacht eine Stahlbetoninnenwand. 

Das Projekt wird als Open BIM Projekt von allen Planungsbeteiligten mit Autocad-Revit bearbeitet.  

Querschnitt

Längsschnitt

Bodenplatte

    IGR Ingenieure GmbH


    Adressänderung seit 01.10.2025:

    Gebelsbergstr. 41
    D-70199 Stuttgart
    Tel. 0711-6566079-0
    Fax 0711-6566079-20
    Diese E-Mail-Adresse ist vor Spambots geschützt! Zur Anzeige muss JavaScript eingeschaltet sein.